Menu_html
Cucina in Muratura - Design
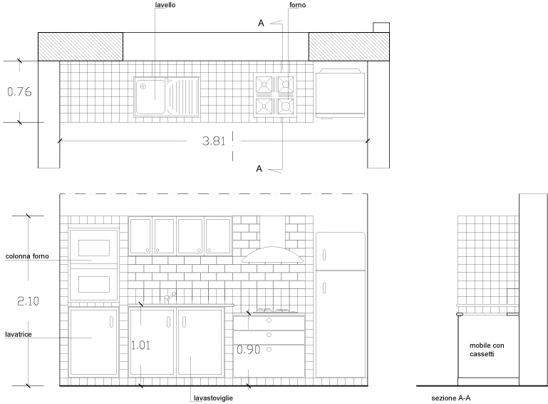
Cucina in Muratura
Nessun commento:
Posta un commento
Post più recente
Post più vecchio
Home page
Iscriviti a:
Commenti sul post (Atom)
Nessun commento:
Posta un commento